top of page
ARCHITECTURE STUDIO
CINEMA PRODUCTION HOUSE
Site
client
Year
Chennai, Tamil Nadu
Vetri Duraisammi
2022
The scope of the project is Interior design for film director and Producer in 3 different floor levels.The overall design approach towards this particular project was all about the joinery details and colours palette used.As the client was very particular about the look and feel shouldn't be like a formal office , so our material decision elevates a casual more warmer tone throughout the space.

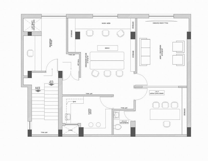
DRAWING:FLOOR PLAN

RENDERED IMAGE: RECEPTION
This being a commercial space with more foot traffic throughout the active period of the building the wear and tear of the materials was our concern as it will inevitably occur.

RENDERED IMAGE: DISCUSSION SPACE

In order to make the space more interesting rather than throwing many materials in the sake of interior designing we chose to focus on attention to detail in every joinery. Detailing from door handle design to desk fixtures to storage cabins.
RENDERED IMAGE: EXPLODED DESK DETAIL
We believe that the choice of material and its texture plays a vital role in every project to make it stand out from other creations .At the end of the day as a space its all about the expression it lets the user to consume .Therefore, that makes a successful project.

RENDERED IMAGE: STORAGE UNIT

RENDERED IMAGE: STORAGE UNIT
Every cabinet shutters has a concealed handle attached to it with a brass accent which eventually starts to weather as a material over the period of time.

RENDERED IMAGE: MOVIE ROOM
A movie room with all its acoustical details for a better audio visual experience.

RENDERED IMAGE: DIRECTOR'S ROOM
bottom of page